Villas

Villas à Misery

3'500.- / mois

Informations
- Disponible à partir du 1er octobre 2025
- Chauffage: pompe-à-chaleur / géothermie
- 220m²

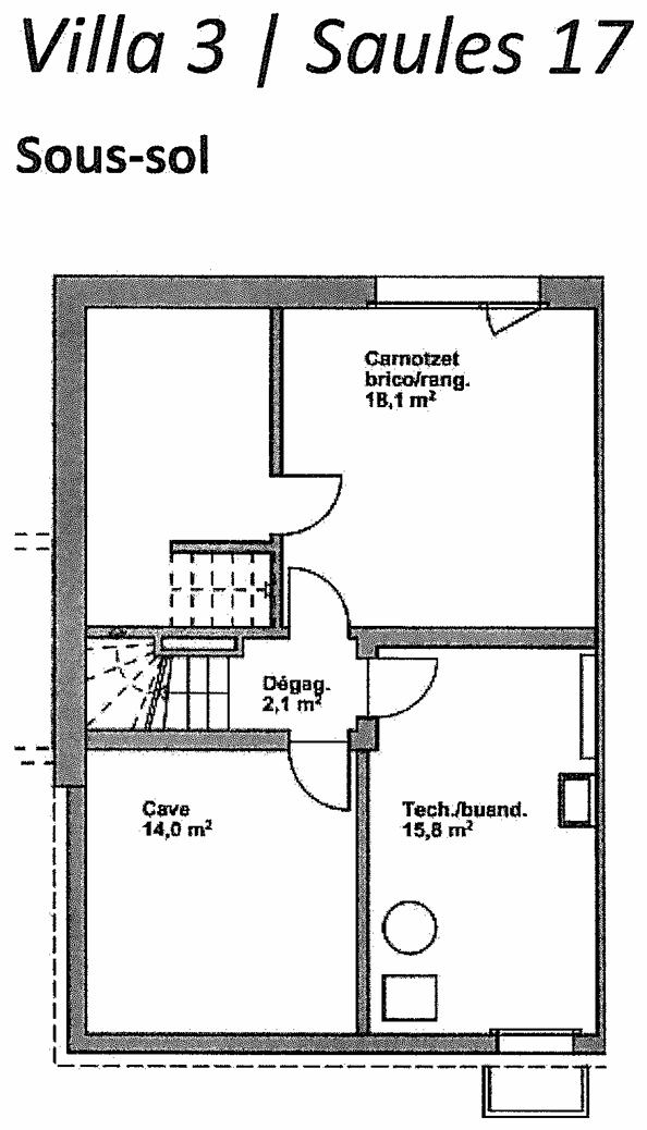
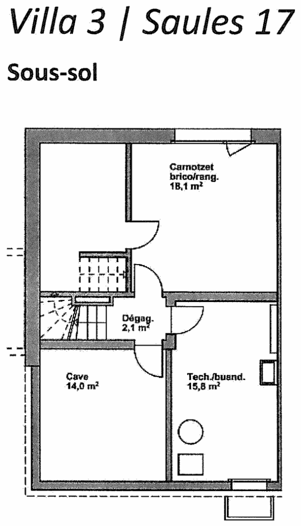
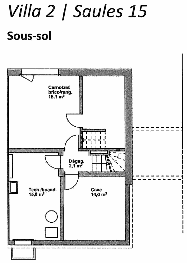
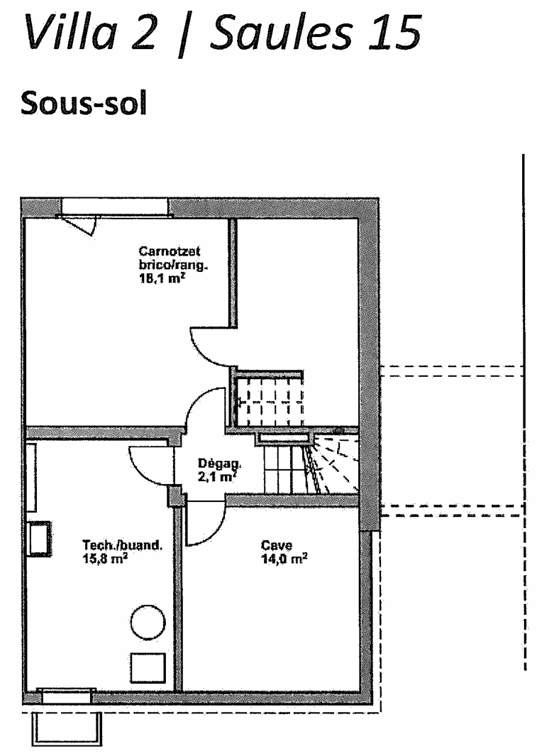
Sous-sol
- Rangement
- Cave
- Local technique / buanderie avec colonne lave-linge / sèche-linge

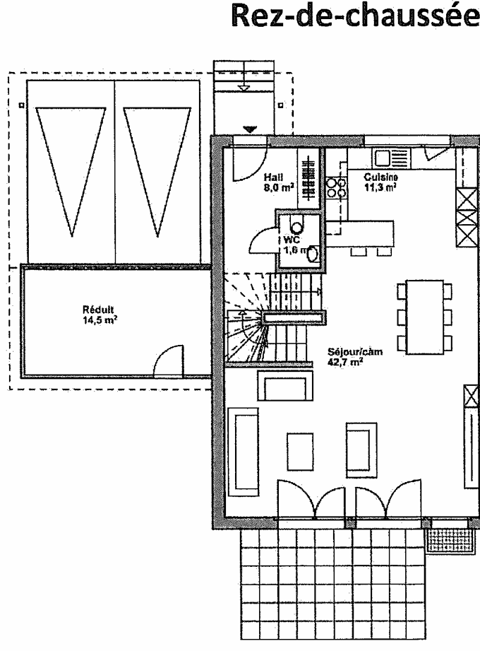
Rez
- Hall d'entrée
- Séjour-cuisine
- WC visite
- Réduit
- Terrasse

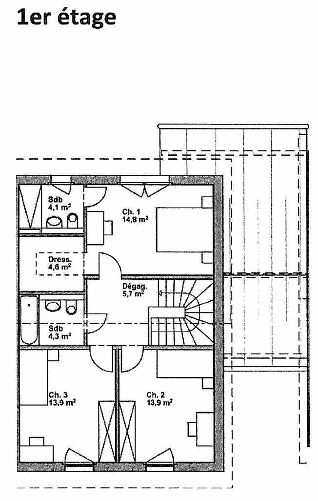
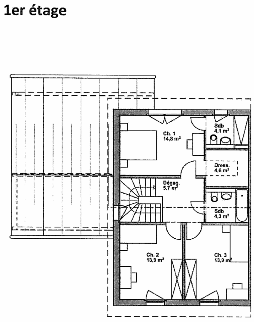
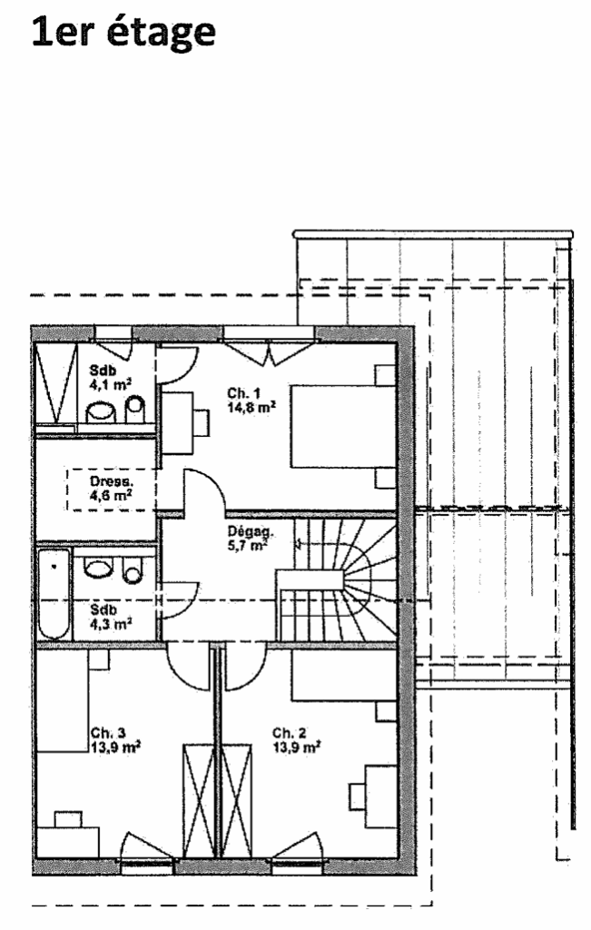
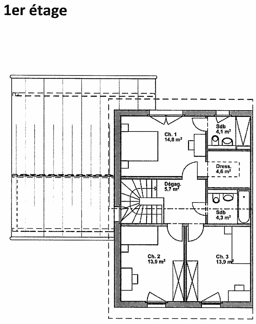
Etage
- Chambre parentale en suite avec dressing
- 2 chambres enfants
- 1 salle-de-bain

Plan Villa 2

Plan Villa 3

Emplacement

Retour en haut