Locaux commerciaux
Bureaux à louer Budron C7
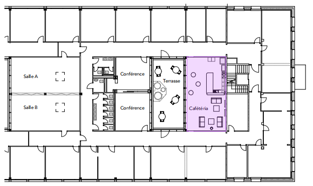
Bureaux dans la zone industrielle de Budron. Idéal pour coworking, start-up et micro entreprises. Avec une salle de conférence, cafeteria et une terrasse.
Facile d’accès, proche des grands axes routiers et des transports publics. Différents services et commodités disponibles à proximité




Les icônes rouges sont interactives: cliquez dessus pour visualiser les pièces des bureaux en 3D
Bureau 4: Dès 450.- /mois
Bureau 7: Dès 350.- /mois
Bureau 5: Dès 870.- /mois
Bureau 6: Dès 780.- /mois
Bureau 8: Dès 775.- /mois
Bureau 9: Dès 370.- /mois
Bureau 10: Dès 740.- /mois
Bureau 11: Dès 750.- /mois
Bureau 12: Dès 750.- /mois
Bureau 13: Dès 780.- /mois
Bureau 14: Dès 760.- /mois
Bureau 15: Dès 760.- /mois
Bureau 16: Dès 450.- /mois
Bureau 17: Dès 450.- /mois
