Actualités

Deux villas mitoyennes à Misery sur Fribourg

Début du chantier en 2026

Quatres parcelles d'habitations

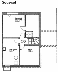
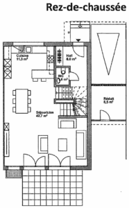
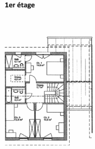
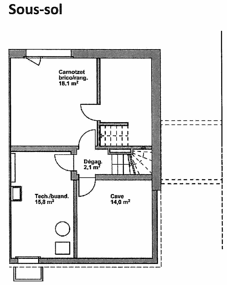
220m² habitables

Retour en haut